
起業家が集まる村「西粟倉村」で築13年/ 14LDKの収益物件オーナーを募集!
最新情報
人口約1,500人の中山間地域で収益物件が本当に成立するのか? 今回は、一見非現実的に思える条件に対し、自信を持って立ち向かえる物件のご紹介です。 立地としても建物としても十分に可能性があるこの物件について是非ご一読ください。
西粟倉村で「暮らす」選択肢をもっと増やしたい
【家賃が値崩れしづらく、空いてもすぐに埋まる高稼働立地】 ■西粟倉村の特長 ・ローカルベンチャーで活性化しているこの村は、毎年20代30代の若い移住者が増加して続けている ・人口1,456人に対し、100人以上が移住者(2019/7/1現在) ・家が貸し尽くされ圧倒的に足りておらず、供給不足の状態 ・運良く物件を見つけたとしても、気密性が悪く、冬は窓の室内側の結露が凍るような家くらいしか見当たらないので、暮らしの満足度は低い
■入居者獲得のルート 弊社(エーゼロ株式会社)には、ローカルベンチャー支援室という移住やインターン生受入れを推進・支援する専門部署があります。移住者のニーズ、動向をつぶさに捉え、情報の共有をしたり、物件そのものを紹介することができます。
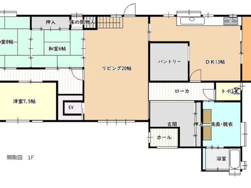
【築浅な上に14LDKという、いくつもの用途が考えられる建物】 ■建物の特長 現所有者様のこだわりがたくさん詰まったこの家の一番の特長は、薪ストーブが置かれ、吹き抜けになった広いリビングが家の中心にあることです。 その他にも、 ・間取りは14LDK、トイレ4箇所、ホームエレベータ付き ・全室ペアガラスで防寒対策も万全 ・木の良さをふんだんに感じられる内装 ・廊下から各居室にアクセスできる間取り ・各部屋の収納スペースはまるで最初から用途変更を視野に入れてシェアハウスの運営ができる様に考えていたかのような造りといった特長があり、このめったにお目にかかれないハイスペックの古民家売却物件を何とか活用したくオーナーになっていただきながら、もし可能なら移住してこの場を盛り上げてもらえる方に出会いたく考えています。
■物件の活用方法案 例えば、「現在村で最も不足している、20代30代の単身者の住まい」が考えられます。 プライベートを確保したシェアハウスに用途変更し改装を行えば、居住問題が一気に解決します。さらに、広いキッチンを活用した食事提供サービスなどを買うことが出来れば、飲食店が少ない村で大きな価値を生みます。 物件の魅力が高まることで、既に別の物件に住んでいる単身者が移り住んで来るということも考えられます。
もちろん、それ以外に保養所や宿、福祉施設など、可能性はいくつもあります。


西粟倉村で暮らしに関わる事業をしたいと思っている方
・民泊やシェアハウスの事業をしたいと考えられている方 ・投資家として西粟倉村に興味があり、拠点整備を通じて西粟倉村と関わりたいと思われている方 ・都会と西粟倉村との2拠点暮らしを実践しようとされている方
この募集の中で投資だけに興味がある、もしくは運営だけに興味があるという方同士が居られた場合のマッチングもお手伝いできればと考えています。


このプロジェクトの地域

西粟倉村
人口 0.13万人

















