
【子育て住宅入居者募集!!】魅力あふれるまち、福島県国見町へ移住してみませんか?
最新情報
プロジェクトの募集が終了しました。
2022/02/17町外から、若い世代・子育て世代の町内への移住定住を促進し、人口減少対策及び地域活性化を図ることを目的とした賃貸住宅を整備しました。 地方での自然に囲まれた田舎暮らしにあこがれている方、おいしい農産物や特産品を食べる生活を望む方、大募集しています!
★国見町はどんなところ?(町HP) https://www.town.kunimi.fukushima.jp/
★町公式プロモーションビデオの公式サイト https://kunimi-short-film.com/
主催:福島県国見町 共催:福島圏域移住定住促進協議会
募集概要について
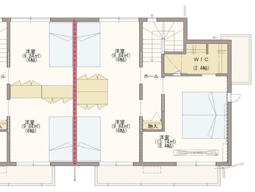
募集戸数は4戸(メゾネットタイプ3LDK) 間取は別添の図面をご参照ください。 入居開始は令和4年4月1日からになります。
■募集受付期間 令和4年2月1日(火曜日)~ 令和4年2月17日(木曜日)必着 ※持参の場合、受付時間は平日午前8時30分から午後5時15分までです。 ※郵送の場合、令和4年2月17日(木曜日)必着となります。
■公開抽選 申し込み後に入居審査を行い、申込者多数の場合公開抽選を行います。 日時 令和4年2月23日(水曜日・祝日) ※詳細は以下のURLからご確認ください。 https://www.town.kunimi.fukushima.jp/soshiki/8/11858.html
■必要書類 下記の通りです。申し込みをする前に必要書類をよくご確認いただき、国見町建設課管理係まで持参または郵送にて提出ください。 (1)定住促進住宅入居申込書 (2)別紙 入居希望順位届出書 (3)入居者全員の住民票 (4)入居者全員の所得証明書 (5)入居者全員の納税証明書
※詳細は以下のURLをご参照ください。 https://www.town.kunimi.fukushima.jp/soshiki/8/11858.html


充実した子育て環境
国見町では以下の子育て支援を行っています。 ○「ももさぽ相談ルーム」を開設し、保健師や助産師に気軽に相談できる体制が整備されているほか、栄養相談や育児相談ができる「ニコニコ相談会」を毎月開催し、母子の心休まる居場所を提供しています。 ○「くにみももたん広場」「子ども木育広場 つながる~む」といった遊び場を用意し、子どもが屋内で遊べるほか、他の家族とコミュニケーションを図ることもできます。 ○小学校や中学校では、授業の一環で地域の歴史や伝統芸能(神楽)を学べるほか、地域住民との交流を図る教育も積極的に行われています。 ○子育て世代の負担軽減のため、給食の無償化を実施ています。 ○公営塾として「放課後塾ハル」を運営しており、基本的な学力向上が図れるほか、子どもたちの興味関心を引き出すテーマ授業(美術、宇宙など)といった教育への多方面でのサポートが充実しています。

このプロジェクトの地域

国見町
人口 0.86万人

国見町 企画調整課が紹介する国見町ってこんなところ!
国見町は福島県の最北端に位置し、北は宮城県白石市と接しております。 また、県庁所在地の福島市から16.5kmの距離にあり、南北にJR東北本線(藤田駅・貝田駅)、東北新幹線、国道4号線が走り、さらに東北自動車道のインターチェンジも有していることから、交通の便に恵まれています。 おもな産業は農業で、米や果物(桃、りんご、柿、あんぽ柿、さくらんぼなど)のほか、野菜の栽培が盛んです。町内には、国道4号線沿いに「道の駅国見あつかしの郷」があり、地元産の野菜や果物のほか加工品などが販売されています。 季節に応じたイベントも盛んにおこなわれ、毎年9月には町内最大のお祭りである「義経まつり」が開催されるほか、年末には恒例行事である「ビッグツリー・イルミネーション」が開催され、町内外から人々が訪れるようになります。
町の良さが詰め込まれたPVを放映しています。興味がある方は是非ご覧ください。 https://kunimi-short-film.com/
このプロジェクトの作成者
地域おこし協力隊活動のほか、移住定住や関係人口創出、シティプロモーション、地域リノベーション事業などを展開しています。 国見町への移住定住や事業展開に興味がある方、遠慮なくご連絡ください!! 町HP:https://www.town.kunimi.fukushima.jp/ ★町公式PVもあるので、ぜひご視聴ください! https://kunimi-short-film.com/


















